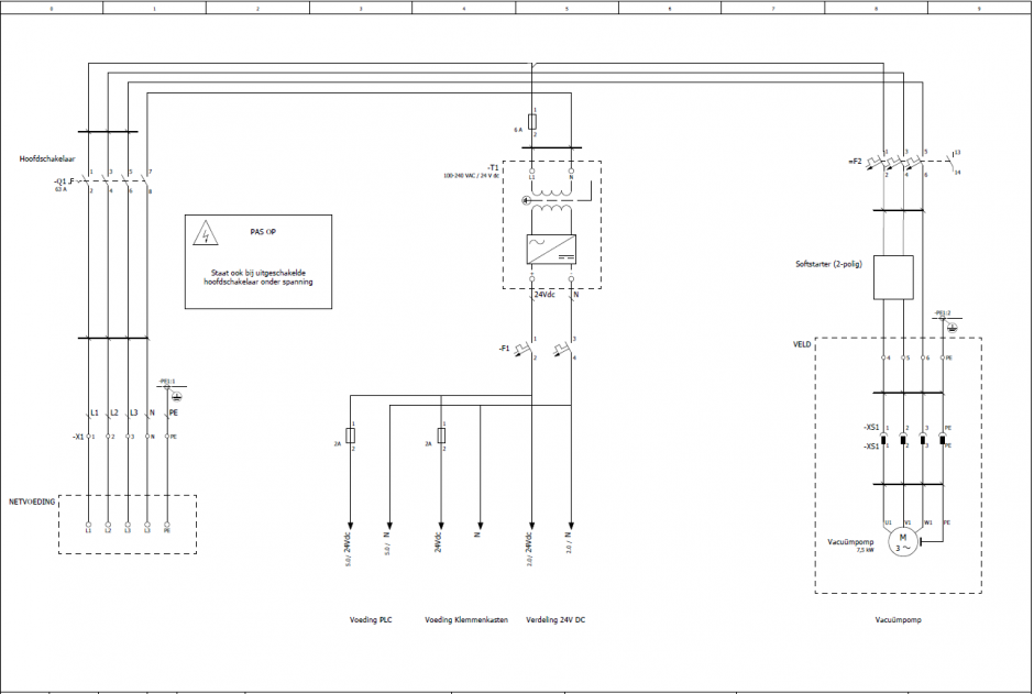
Esquemas eléctricos y automatización con Eplan

Especialista técnico en el disenño de Esquemas elétricos y automatización de máquinas para diversas empresas y proyectos como Machinebouw-Ede BV, Tata Steel o Schiphol.
Mis tareas incluyen la creación, mantenimiento, modificación y ampliación de dibujos de diagramas para instalaciones complejas realizados con Eplan.